
Усиление каменных конструкций и зданий в целом приводит к увеличению несущей способности конструкций. Каменные конструкции и здания можно усилить следующими способами и методами: обетонированием (железобетонные и стальные обоймы, торкретирование), металлическими элементами (ненапрягаемыми навесными обоймами, обоймами – стойками и полосами, напрягаемыми анкерами и тяжами), инъектированием (полимерным раствором, цементным раствором, цементно – полимерным раствором), перекладкой и другими.
Так как каменные конструкции в основном испытывают сжимающие усилия, устройство различных обойм является наиболее эффективным способом. Как известно, в кладке, усиленной обоймой, наблюдается сжатие, развивающееся во всех направлениях. При этом имеет место ограничения его расширения в поперечном направлении, что приводит к значительному увеличению сопротивляемости кладки воздействию продольных сил.
С целью уменьшения капитальных вложений и ускорения процесса усиление каменных конструкций необходимо выполнить индустриальным способом, не требующим разгрузки конструкций. Эффективными, с этой точки зрения, являются методы, связанные с изменением статической схемы конструкций, а также применением предварительного напряжения и высокопрочных сталей. При этом необходимо обеспечить плавное включение в работу элементов усиления.
Нами был проведен анализ данных, полученных по деформациям конструкций и зданий. В рассматриваемых условиях при выборе способа усиления несущих конструкций необходимо учитывать инженерно-геологические условия грунтов. Также на выбор влияет степень изученности работы конструкции, величина и характер нагрузки, приложенные к ней. Немаловажным фактором является детальности и объемы обследования эксплуатируемых фундаментов, техническое состояния существующих конструкций, планируемые методы производства работ, типы и количество применяемых машин и оборудования.
В старых зданиях, эксплуатируемых длительное время, имеющие большое количество дефектов и получивших значительные повреждения в результате развития неравномерных осадок, как правило, наблюдаются особо опасные деформации. Эти деформации способствуют ослаблению несущих конструкций, вследствие образования трещины в стенах, сдвиги элементов лестниц (маршей и площадок), смещение и сдвиги перекрытий, перекосы проемов, прогибы и перемещения перемычек, отклонения от вертикали стен и др.
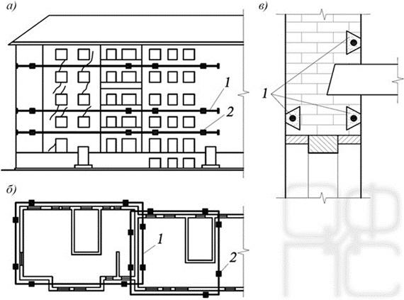
Для исключения развития деформаций в дальнейшем и предотвращения возникновения опасных трещин в местах примыкания капитальных стен друг к другу, и недопущения отклонения стены и их отдельных участков от вертикальной плоскости, и ее выпучивания, можно проектировать накладные пояса (рис. 1). Конструкция накладных поясов состоят из парных вертикальных (анкеров) и горизонтальных (тяжей) элементов. В качестве вертикальных элементов усиления принимаются, как обычно, прокатные швеллера № 12–14. Горизонтальные тяжи изготавливаются из арматурной стали диаметром 18–28 мм. Для исключения возможных препятствий целесообразно их размещать на уровне перекрытий с дальнейшим укрытием тяж под полами. Натяжение тяжей осуществляется механически, с помощью муфт.
Так как каменные конструкции в основном испытывают сжимающие усилия, устройство различных обойм является наиболее эффективным способом. Как известно, в кладке, усиленной обоймой, наблюдается сжатие, развивающееся во всех направлениях. При этом имеет место ограничения его расширения в поперечном направлении, что приводит к значительному увеличению сопротивляемости кладки воздействию продольных сил.
С целью уменьшения капитальных вложений и ускорения процесса усиление каменных конструкций необходимо выполнить индустриальным способом, не требующим разгрузки конструкций. Эффективными, с этой точки зрения, являются методы, связанные с изменением статической схемы конструкций, а также применением предварительного напряжения и высокопрочных сталей. При этом необходимо обеспечить плавное включение в работу элементов усиления.
Нами был проведен анализ данных, полученных по деформациям конструкций и зданий. В рассматриваемых условиях при выборе способа усиления несущих конструкций необходимо учитывать инженерно-геологические условия грунтов. Также на выбор влияет степень изученности работы конструкции, величина и характер нагрузки, приложенные к ней. Немаловажным фактором является детальности и объемы обследования эксплуатируемых фундаментов, техническое состояния существующих конструкций, планируемые методы производства работ, типы и количество применяемых машин и оборудования.
В старых зданиях, эксплуатируемых длительное время, имеющие большое количество дефектов и получивших значительные повреждения в результате развития неравномерных осадок, как правило, наблюдаются особо опасные деформации. Эти деформации способствуют ослаблению несущих конструкций, вследствие образования трещины в стенах, сдвиги элементов лестниц (маршей и площадок), смещение и сдвиги перекрытий, перекосы проемов, прогибы и перемещения перемычек, отклонения от вертикали стен и др.
Для исключения развития деформаций в дальнейшем и предотвращения возникновения опасных трещин в местах примыкания капитальных стен друг к другу, и недопущения отклонения стены и их отдельных участков от вертикальной плоскости, и ее выпучивания, можно проектировать накладные пояса (рис. 1). Конструкция накладных поясов состоят из парных вертикальных (анкеров) и горизонтальных (тяжей) элементов. В качестве вертикальных элементов усиления принимаются, как обычно, прокатные швеллера № 12–14. Горизонтальные тяжи изготавливаются из арматурной стали диаметром 18–28 мм. Для исключения возможных препятствий целесообразно их размещать на уровне перекрытий с дальнейшим укрытием тяж под полами. Натяжение тяжей осуществляется механически, с помощью муфт.

Рис. 1. Усиление здания вертикальными накладными поясами 1 – накладной пояс из швеллера; 2 – металлический тяж
С наружной стороны стены, в местах выхода горизонтальных тяжей, необходимо установить теплоизолирующие прокладки, которые способны предотвращать образованию изморози на поверхности металлических изделий внутри зданий.
Эффективным методом усиления каменных конструкций является устройство напряженных поясов конструкции Козлова (рис. 2). Такие пояса целесообразно применять в зданиях, в стенах которого имеется трещины, характеризующиеся значительной шириной раскрытия и большой протяженностью. Сущностью метода является передача растягивающих напряжений на элементы усиления, то есть на металлические элементы, имеющие хорошую работу на растяжения. При этом кладка полностью работает на сжатие и повышается пространственная жесткость здания в целом. По сравнению с другими методами, конструкция Козлова имеет некоторые преимущества. Во-первых, пояс способствует выравнивание неравномерных деформаций здания, во-вторых, обеспечивает выполнение работ по усилению и восстановлению при нормальной эксплуатации здания, в-третьих, не требуется замена поврежденной части кирпичной кладки на новую (перекладки участков стен), в-четвертых, уменьшает расход металла на усиление и восстановление поврежденных конструкций и здания.
Эффективным методом усиления каменных конструкций является устройство напряженных поясов конструкции Козлова (рис. 2). Такие пояса целесообразно применять в зданиях, в стенах которого имеется трещины, характеризующиеся значительной шириной раскрытия и большой протяженностью. Сущностью метода является передача растягивающих напряжений на элементы усиления, то есть на металлические элементы, имеющие хорошую работу на растяжения. При этом кладка полностью работает на сжатие и повышается пространственная жесткость здания в целом. По сравнению с другими методами, конструкция Козлова имеет некоторые преимущества. Во-первых, пояс способствует выравнивание неравномерных деформаций здания, во-вторых, обеспечивает выполнение работ по усилению и восстановлению при нормальной эксплуатации здания, в-третьих, не требуется замена поврежденной части кирпичной кладки на новую (перекладки участков стен), в-четвертых, уменьшает расход металла на усиление и восстановление поврежденных конструкций и здания.

Рис. 2. Усиление здания напрягаемыми поясами а – фасад; б – план части здания; в – варианты размещения тяжей; 1 – арматурный тяж диаметром 22 – 32 мм; 2 – штраба
Для того, чтобы пояса не мешали нормальной эксплуатации зданий, их устраивают на уровне перекрытий этажа и на уровне чердачного перекрытия. Они изготавливаются из арматурных стержней диаметром 22–32 мм или металлических профилей. Пояс охватывает здание или его поврежденный отсек. Натяжения арматуры выполняется обычно вручную резьбовыми муфтами. Стержни усиления размещаются в горизонтальные штрабы, которые пробиваются предварительно с наружной стороны стен. Стержни усиления крепят к опорным частям. Опорная часть состоит из вертикальных уголков. В качестве опорных частей пояса принимают уголки № 10–15. При устройстве напряженных поясов необходимо учитывать, что соотношение сторон пояса должна быть не более 1,5:1. Обычно длинная сторона составляет 15–18 м. Если пояс, охватывает только деформированную часть здания, тогда он должен быть заведен на неповрежденную часть стены. Длина пояса, заведенная на неповрежденную часть принимается равной 1,5 и более длины деформированного участка.
При усилении отдельных частей каменных конструкций можно применять скобы-стяжки. Устанавливаются такие скобы-стяжки (рис. 3) в штрабе, которая по окончанию работ заполняется бетоном класса В10 и уплотняется. Применяется для усиления и разгрузочные балки (рис. 3). Разгрузочная балка, чаще это швеллера, устанавливается на цементном растворе в штрабе. Глубина штраба должна быть не менее ширины полки. Так же как при скобы-стяжки по окончанию крепления балки, штраба заполняется бетоном класса В10 с уплотнением. Предварительно все металлические изделия скоб-стяжек и разгрузочных балок покрывается антикоррозионными составами.
Если толщина стен небольшая (до 64 см) допускается устанавливать элементы усиления с одной стороны (односторонние разгрузочные балки), при этом необходимо произвести их анкеровку полосовым металлом или арматурными стержнями с интервалом, через 2–2,5 м болтами диаметром 16–20 мм. При толщине стен более 64 см устанавливают двусторонние разгрузочные балки и их анкеруют таким же интервалом.
Скоб-стяжек (рис. 3), применяется для устройства локального усиление поврежденного участка стены, а разгрузочные балки способствуют усилению здания в целом. В качестве разгружающих балок применяются швеллера № 22–27, их ставят на уровне верха фундамента или на уровне оконных перемычек первого или подвального этажа.
При усилении отдельных частей каменных конструкций можно применять скобы-стяжки. Устанавливаются такие скобы-стяжки (рис. 3) в штрабе, которая по окончанию работ заполняется бетоном класса В10 и уплотняется. Применяется для усиления и разгрузочные балки (рис. 3). Разгрузочная балка, чаще это швеллера, устанавливается на цементном растворе в штрабе. Глубина штраба должна быть не менее ширины полки. Так же как при скобы-стяжки по окончанию крепления балки, штраба заполняется бетоном класса В10 с уплотнением. Предварительно все металлические изделия скоб-стяжек и разгрузочных балок покрывается антикоррозионными составами.
Если толщина стен небольшая (до 64 см) допускается устанавливать элементы усиления с одной стороны (односторонние разгрузочные балки), при этом необходимо произвести их анкеровку полосовым металлом или арматурными стержнями с интервалом, через 2–2,5 м болтами диаметром 16–20 мм. При толщине стен более 64 см устанавливают двусторонние разгрузочные балки и их анкеруют таким же интервалом.
Скоб-стяжек (рис. 3), применяется для устройства локального усиление поврежденного участка стены, а разгрузочные балки способствуют усилению здания в целом. В качестве разгружающих балок применяются швеллера № 22–27, их ставят на уровне верха фундамента или на уровне оконных перемычек первого или подвального этажа.

Рис. 3. Усиление кирпичных зданий с помощью скоб-стяжек или разгрузочных балок а – фасад; б – фрагмент усиления, 1 – скоба-стяжка; 2 – разгрузочная балка из швеллера на уровне верха фундамента (на уровне 1-го или подвального этажа), 3 – стяжной болт, 4 – планка-анкер; 5 – бетон марки 100
Увеличение пространственной жесткости сооружения изменением конструктивной схемы позволяет перераспределить усилия в конструкциях, обеспечив более эффективную их работу. Для этого можно установить дополнительные конструкции в виде стоек, подкосов, порталов, ввести связи, диафрагмы, распорки и др. (рис. 4). Усиление кладки должно быть доведено до конца и приведено к абсолютному восстановлению всех поврежденных зон. Важно вовремя осуществить реконструкцию, чтобы не допустить полного разрушения стен.

Рис. 4. Установка жестких и гибких разгружающих конструкций а – дополнительная колонна; б – подкосы; в – портал; г – подкосы
Деформированные простенки между оконными, дверными или иными проемами кирпичных зданий усиливают путем устройства металлических или железобетонных корсетов (обойм). При усилении каменных простенков эффективно применение металлических обойм, конструкция которой состоит из вертикальных стоек уголковой стали с шириной полок 100–120 мм, охватывающих углы простенка, и приваренных к стойкам через определенный интервал горизонтальных планок из полосовой стали толщиной 6– 8 мм. Такая обойма почти вдвое повышает несущую способность простенка (рис. 5). С внутренней стороны здания части металлического каркаса устраиваются с заглублением в тело простенка и последующим оштукатуриванием борозд.
В случаях, когда напряжение в рабочем сечении простенка может вызвать разрушение кладки целесообразно применять железобетонный корсет. Для размещения стоек корсета пробивают в кладке простенке вертикальные борозды.
В случаях, когда напряжение в рабочем сечении простенка может вызвать разрушение кладки целесообразно применять железобетонный корсет. Для размещения стоек корсета пробивают в кладке простенке вертикальные борозды.

Рис. 5. Усиление кирпичного простенка металлической обоймой 1 – кирпичная кладка; 2 – металлическая планка; 3 – уголок
Расчет конструкций усиления производится по двум группам предельных состояний. Если конструкция эксплуатируется в обычных условиях, а усиление ее вызвано дефектом и снижением несущей способностью, расчет выполняется только по первой группе предельного состояния. Расчет прочности усиленных конструкций для нормальных и наклонных сечений выполняется так, как и для обычных элементов в зависимости от их напряженного состояния.
Усиление конструкций выполняется по временной и по постоянной схеме. Если в конструкциях и зданиях происходит длительное развитие деформаций и возникают аварийные повреждения, применяют временное усиление. При этом если наблюдается стабилизация деформаций необходимо заменить временное усиление на постоянное.
Для предотвращения разращений перед началом работы по усилению отдельных конструкций, выполняют их разгрузку с помощью установки временных опор. Однако здесь иногда допускаются ошибки: от деформированных конструкций, лежащих выше усиливаемого элемента нагрузка сосредоточенно передается на деформирующийся фундамент и это приводит к ухудшению условий его работы. Поэтому, нагрузка должна перераспределяться таким образом, чтобы можно было частично или полностью разгрузить деформирующийся фундамент, т.е. передать эту нагрузку на надежное основание, иногда через специально для этого выполненные опоры (площадки). Необходимо вести постоянные наблюдения за временными опорами и при необходимости подбивать под них клинья или ставить дополнительные разгружающие опоры. В случае если временное крепление имеется под лежащей выше кладки, для усиления простенка можно применять частичную или полную их перекладку.
Усиление конструкций выполняется по временной и по постоянной схеме. Если в конструкциях и зданиях происходит длительное развитие деформаций и возникают аварийные повреждения, применяют временное усиление. При этом если наблюдается стабилизация деформаций необходимо заменить временное усиление на постоянное.
Для предотвращения разращений перед началом работы по усилению отдельных конструкций, выполняют их разгрузку с помощью установки временных опор. Однако здесь иногда допускаются ошибки: от деформированных конструкций, лежащих выше усиливаемого элемента нагрузка сосредоточенно передается на деформирующийся фундамент и это приводит к ухудшению условий его работы. Поэтому, нагрузка должна перераспределяться таким образом, чтобы можно было частично или полностью разгрузить деформирующийся фундамент, т.е. передать эту нагрузку на надежное основание, иногда через специально для этого выполненные опоры (площадки). Необходимо вести постоянные наблюдения за временными опорами и при необходимости подбивать под них клинья или ставить дополнительные разгружающие опоры. В случае если временное крепление имеется под лежащей выше кладки, для усиления простенка можно применять частичную или полную их перекладку.
